Построить дом мечты из СИП-панелей в Красноярск...
Домокомплект от завода «Строник-Крым»
Домокомплекты из СИП панелей от производителя г...
Дома из СИП панелей в Самаре | Деревянные фермы...
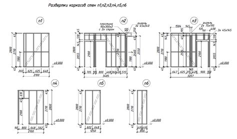
Монтаж домокомплектов / монтаж СИП дома стенами...
Купить домокомплект из СИП панелей по цене заво...
СИП(SIP) панели, домокомплекты из сип панелей. ...
Монтаж домокомплекту / монтаж СІП будинку стіна...
Дом из СИП-панелей. Соединение СИП-панелей. Дом...
SIP (СИП) технология строительства домов - Кана...
Домокомплекты из сип панелей от производителя п...
Производство СИП панелей. Домокомплекты | Компа...
Домокомплект Север 73 | домокомплекты Колесова ...
Домокомплекты от производителя - Дома из СИП-па...
Купить домокомплекты из СИП панелей с завода в ...
Домокомплект из СИП панелей купить по цене заво...
Купить домокомплект из сип панелей с завода СИП24
Домокомплект (72 фото) » НА ДАЧЕ ФОТО
Завод Домов 77 – домокомплекты из СИП панелей |...
Домокомплекты из СИП панелей цена от 120 €/м2, ...