Купить Патрубок охлаждения во впускной коллекто...
Патрубок канализационный чугунный Ду150х100 б/н...
Патрубок карбюратора впускной ИЖ ПС (НЕТ В НАЛИ...
Патрубок выхлопной — ПринтПарт
Патрубок переходной двухраструбный – стоимость ...
Патрубок силиконовый с переходом L 100 д 16*32 ...
Патрубок насоса гідравліки до навантажувача. KA...
Всасывающий патрубок - купить
Патрубок монтажный ПМ – ООО «Поршень»
Патрубок для удлинения выхлопной системы. | Тру...
выхлопной патрубок часть 2 — ЗАЗ 968, 1,2 л, 19...
Патрубок канализационный 110мм - Пласт-пайп
Патрубок вентиляционный
Каталог Патрубок переходной (внутренний)
Патрубок ПРГ раструб-гладкий конец купить, цена
Патрубок переходной двухраструбный. Купить труб...
Переделал патрубок холодного впуска — Hyundai A...
Патрубок силиконовый прямой купить в Минске
Патрубок. АО «Супер-Авто Холдинг» автосборочное...
Патрубок гладкий с ПВХ фланцем (литой). Купить ...
Патрубок фланцевый | ООО ТрансРемСервис
Патрубок гибкий – Строймир77
Vetus: выхлопные патрубки
Патрубок вентиляционный ПВ – Оборудование для р...
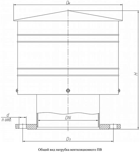
Патрубок вентиляционный ПВ
Люки и патрубки
Патрубок вентиляционный периферийный ПВп – Обор...
Патрубок силиконовый прямой с переходом купить ...
Патрубок раструбный с металлическим фланцем PN ...
Сливной патрубок для еврокуба купить в Минске⭐
Патрубок раструбный с ПВХ фланцем (литой). Купи...